Подать объявление
Подать объявление

Продам Универсальное помещение Саратов, Заводской р-н., ул Им Хомяковой В.Д., д. 20

ID: П579560, от 19 ноября 2025   18
Предложение по приобретению объекта под склад, производство, торговлю, распределительный центр. Район ДК "Химик".
Расположение: ул. Хомяковой, д. 20а
Описание:
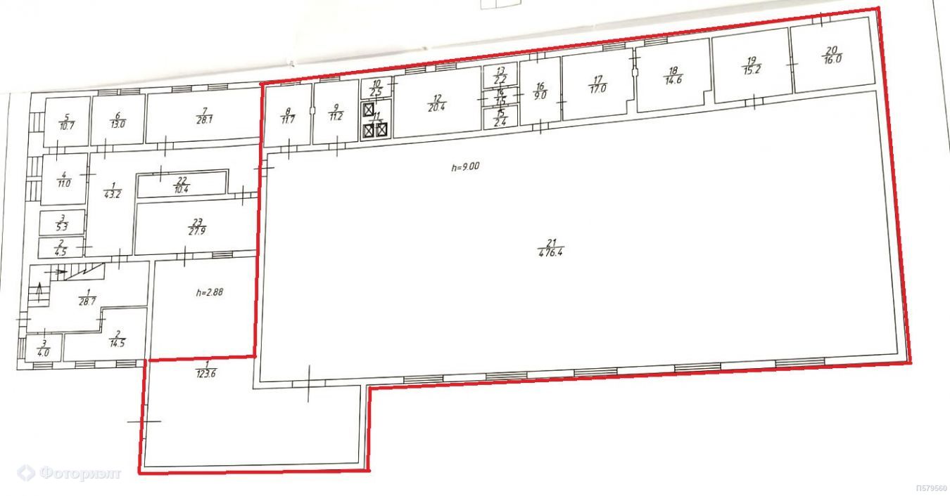
- общая площадь 680 кв. м., из которых 480 кв. м. с высотой 9 м, 200 кв. м. - подсобные помещения: коридор для проезда в рабочее пространство с воротами под еврофуру, помещения под офисы, сан. узлы, душевые. электрическая мощность – 300 кВт. вода и слив - центральныеотопление - автономное.
Планировка: 480 кв. м., h - 9 кв. м., 171 кв. м. - рабочий коридор с ролевыми подъемными воротами высотой 6 м. с возможностью заезда внутрь большегрузного транспорта.
Земельный участок 4465 кв. м. Собственность.
Территория огорожена по периметру.
Назначение универсальное: склад, производство, медицинские учреждения, спортивные учреждения, торговля и пр.
Первая линия ул. Хомяковой.
Асфальтированный подъезд.
Огороженная территория.
Стоимость: 25 млн рублей.
Без комиссии
25 000 000
~21,3 тыс ₽/м²
Подписаться на изменения цены
Помещение
Площадь 1173.4 м²
Этаж 2 из 2
Энергоснабжение 700 кВт
Агентство недвижимости
РБС