Подать объявление
Подать объявление

Продам Универсальное помещение Саратов, Ленинский р-н., ул Ипподромная, д. 13

ID: П579091, от 2 ноября 2025   15
Предлагаем рассмотреть приобретение отдельно стоящего здания, расположенного в новом, динамично развивающемся районе города.
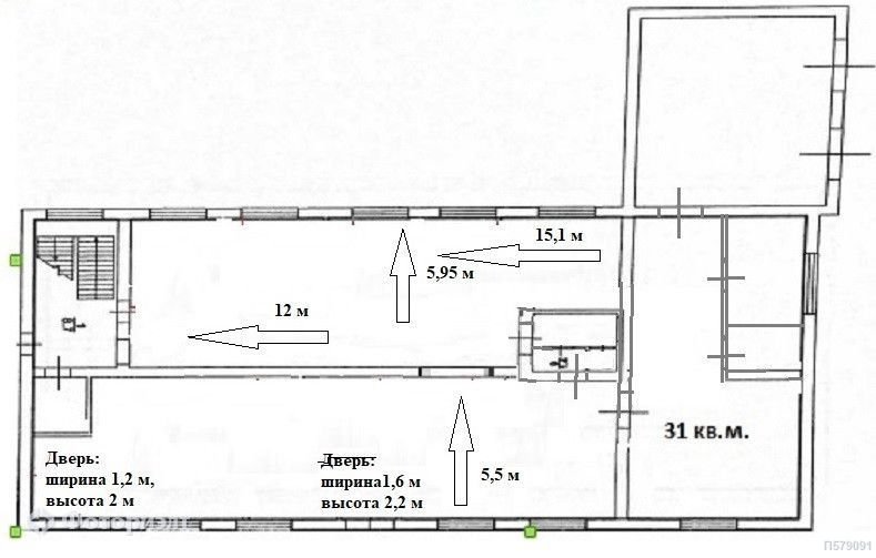
Это трехэтажное здание с мансардой общей площадью 747,4 м подойдет для реализации различных бизнес-идей, в том числе медицина, общепит, услуги и пр.

Основные характеристики:
- Этажность: 3 этажа (два этажа + мансарда)
- Площадь: 747,4 м
- Мощность: 150 кВт, что позволит разместиться как офису, так и медицинскому центру
- Высота потолков: до 3,4 м
- Отопление: автономное
- Коммуникации: центральное водоснабжение и канализация
- Планировка: возможность адаптации под open-space или кабинеты на каждом этаже
- Дополнительные площади: наличие помещения для гаража или склада
- Парковка: асфальтированная

Разрешенное использование земельного участка: идеален для размещения административных и производственных зданий.

Локация:
В 10 минутах ходьбы от микрорайона «З Дачная», где находятся крупные торговые центры, рынки и администрация района. Микрорайон также выступает в роли транспортного хаба, обеспечивая удобный доступ во все направления города.

Назначение: здание подходит для различных видов деятельности, включая торговлю, офисные пространства, колл-центры, хобби-центры и медицинские учреждения.

Также мы открыты для обсуждения различных вариантов партнерства по данному объекту.
78 000 000
~104,3 тыс ₽/м²
Подписаться на изменения цены
Помещение
Площадь 747.4 м²
Этаж 3 из 3
Высота потолков 3.4 м.
Энергоснабжение 150 кВт
Агентство недвижимости
РБС