Подать объявление
Подать объявление

Сдам Складское помещение Саратов, Ленинский р-н., тракт Сокурский

ID: А85889, от 24 января 2026   4
Помещение под производство, склад на сокурском тракте
Капитальное кирпичное строение

Только на длительный срок

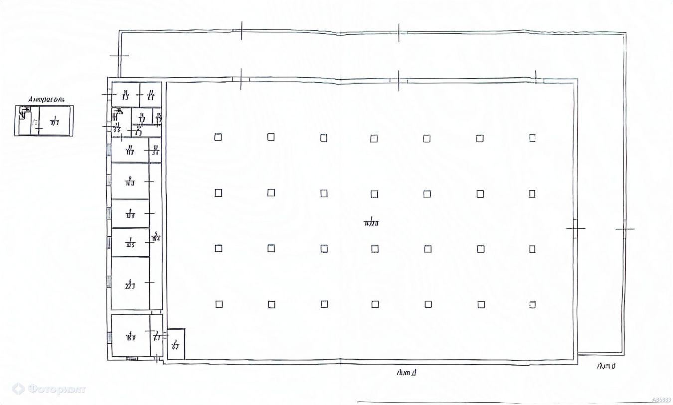
Общая площадь 2027 кв. М.
Состоит из помещений:
1432 кв. М. Основной склад 48 м х 30 м,
431 кв. М. Холодный склад - пристройка буквой «г» вокруг основного склада
85,7 кв. М. 6 шт офисных помещений 16,9/22,3/10,6/10,9/14/11 кв. М.
78,3 кв. М. Коридоры, санузел, кладовые, антресоль

Высота потолков 4,8 м у стен, 6 м максимально в центре
Расстояние между опорных колонн 6 м

Отопление: печи длительного горения дровяные в помещении склада, в офисных помещениях водяное отопление
Над воротами в склад тепловая завеса

Электричество: 19 квт (по договору с спгэс), увеличение возможно, технические возможности есть

Покрытие пола в складе бетон
Крытый пандус для погрузки/разгрузки: фуры, газели
Внутрь помещения входит фура, ворота 4,3м ширина, 4,1 высота
Круговое движение вокруг склада, широкие проезды - для маневра большегрузного транспорта
Вся территория в твердом покрытии
Отличная логистика объекта
Охранная сигнализация объекта

Аренда: 405 400 руб/месяц + коммунальные платежи от потребления

Звоните!
405 400 /мес.
Помещение
Площадь 2027 м²
Этаж 1 из 1
Высота потолков 5 м.
Стены здания кирпичный
Энергоснабжение 19 кВт
Интернет.
Агентство недвижимости
РБС

Последние объекты