Подать объявление
Подать объявление

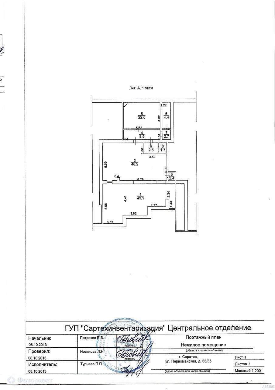
Сдам Универсальное помещение Саратов, Волжский р-н., ул Первомайская, д. 33/35

ID: А85895, от 27 января 2026   6
Действующий ресторан в аренду.
Район Набережной, на 180 посадочных мест в 2х уровнях --1ый,2ой этаж.
Состоит из посадочных залов, хозяйственных помещений, кухонной и мангальной зоны, офиса.
2 основных зала и лобби зона с панорамным остеклением,
Левая часть первого этажа площадь - 141,5 кв. м.
Правая часть первого этажа - зал+кухня - 307,8 кв. м.
Второй этаж - 140,7 кв. м.
кол-во выделенных квт-- 130, высота потолка порядка 3-х м. Более 3х входов, в ТЧ низкий вход в зону кухни, там же есть лифт -подъёмник для блюд.
Оборудовано газовыми котлами, системой приточно-вытяжной вентиляции, системой кондиционирования, видеонаблюдением.
Мебель, техника, в т. ч. все кухонное оборудование и посуда.
Три входа. в том числе один с зоны кухни.
Достаточное кол-во парковочных мест.

Основные преимущества:
близость туристической и прогулочной зоны,
оснащение оборудованием, мебелью и посудой,
наличие нескольких залов, которые позволят использовать объект не только под общепит, но и под авторские, творческие, бизнес -мероприятия,
наличие парковочных мест.
Встречные предложения учтем, звоните.
600 000 /мес.
Помещение
Площадь 600 м²
Этаж 1 из 17
Высота потолков 3 м.
Стены здания монолитный
Энергоснабжение 130 кВт
Интернет.
Агентство недвижимости
РБС

Последние объекты